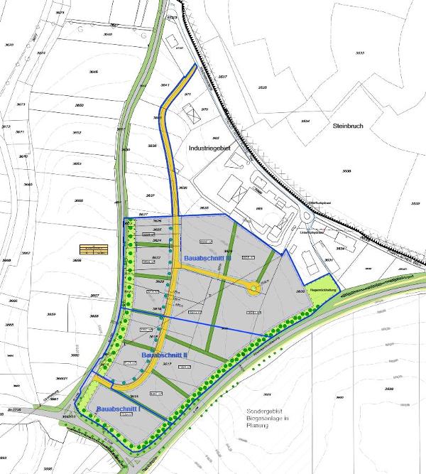
Gewerbefläche 1 - 1 / Gewerbepark Lauterhofen Süd II
Lauterhofen , Lkr. Neumarkt in der Oberpfalz
Grunddaten
| Größe der unbebauten Fläche | 105.266 m² |
| Größe der Fläche mit Baurecht | 105.266 m² |
| Teilbar ab | 3.223 m² |
| Bebauungsplan Nr. / Name | Gewerbepark Lauterhofen-Süd II |
| Bebauungsplan Status | in Aufstellung |
| Grundflächenzahl (GRZ) | 0,8 |
| Gebäudehöhe | 9 m |
| Erschließung | nicht erschlossen |
| Ausweisung Nach Bau NVO | Gewerbegebiet (GE) Erläuterungen |
| Baurechtliche Verfügbarkeit | kurzfristig verfügbar |
| Erwerb | kurzfristig verfügbar |
| Eigentümer | privat |
| Derzeitige Nutzung | Land- oder Fortwirtschaftlich |
| Beschreibung / besondere Merkmale | Dachformen und Dachneigung: SD (10-45 Grad), PD (10-20 Grad), FL; Durch die individuelle Parzellierung kann Betrieben Gewerbegrund in bedarfsgerechter Größe angeboten werden. Der bayernhafen Nürnberg (www.gvz-hafen.com) ist nur 47 km entfernt. Der Gewerbepark Lauterhofen Süd II grenzt direkt an das Industriegebiet an. Dort stehen weitere Flächen zur Verfügung. |
Verkehr
| Verkehrsanbindung | |
| Bundesstrasse 299 Lauterhofen | 0,1 km |
| Autobahn 6 Sulzbach-Rosenberg, Lauterhofen | 9 km |
| Autobahn 6 Alfeld, Lauterhofen | 7 km |
| Autobahn 3 Lengenfeld, Velburg | 18 km |
| Autobahn 3 Neumarkt i.d.OPf. | 15 km |
| Verkehrsinfrastruktur | |
| DB-Bahnhof Neumarkt | 17 km |
| Flughafen Nürnberg | 49 km |
Infrastruktur
| Abwasserbeseitigung Mischsystem | ja |
| Verkehrserschließung | ja |
| Stromversorgung | ja |
| Breitbandversorgung | ja |
| Gasversorgung | ja |
| Wasserversorgung | ja |
