Lager- und Produktionshallen im Gewerbegebiet
Velden , Lkr. Landshut
Grunddaten
| Art des Objektes | Hallenfläche / Produktion, Büroflächen |
| Lage | ca. 20 Min. Fahrzeit zur Autobahn A 94 ca. 15 Min. Fahrzeit nach Vilsbiburg ca. 35 Min Fahrzeit nach Landshut sowie Moosburg und Mühldorf a. I. ca. 40 Min. Fahrzeit zum Flughafen München sowie dem Münchner Messegelände Bushaltestelle Velden (Vils) in 350 m Entfernung Bahnhof Vilsbiburg in 16 km Entfernung B388 in 2,5 km Entfernung
|
| Nutzfläche | 7.200 m² |
| Mietpreisspanne | 6,3 - 8 € /m² |
| Vergabeart | Verkauf oder Vermietung |
| Verfügbar ab | 10.01.2024 |
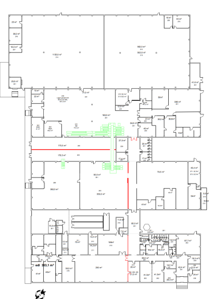
| Beschreibung / besondere Merkmale | Mit vier freundlich und hell gestalteten Produktionshallen bietet das moderne und gepflegte Objekt viel Platz für Produktionen. Neben den Büroräumen gibt es ausreichend Platz für Meetings und Fortbildungen. Für die Verpflegung der Angestellten ist eine Geschäftsküche mit Essbereich (Kantine) vorhanden. Umkleideräume, Duschen und WCs für Damen und Herren sind vor Ort. Parkplätze stehen reichlich zur Verfügung. Die Hallen und die Werkstattbereiche sind bestens für z. B. Entwicklung, Erprobung, Montage und Fertigung von Bauteilen ausgelegt. Halle 1 Labor/Produktion - 928 qm Halle 1 Büro/Umkleide/Kantine - 522 qm Halle 2 Lager/Produktion - 1.700 qm Halle 3 Lager/Produktion - 1.450 qm Halle 4 Lager/Produktion - 2.300 qm EG & 1. OG Verwaltung/Werkstatt - 420 qm PKW-Stellplätze 128 Stück --- teilbar nach Absprache --- |
Wir weisen ausdrücklich darauf hin, dass vorstehende Informationen auf den Angaben des Anbieters beruhen und von uns nicht auf Plausibilität, Vollständigkeit und Richtigkeit überprüft wurden. Für den Inhalt der Angaben übernehmen wir keine Haftung!
