Gewerbefläche - Bindlacher Berg / IBC

Bindlach , Lkr. Bayreuth

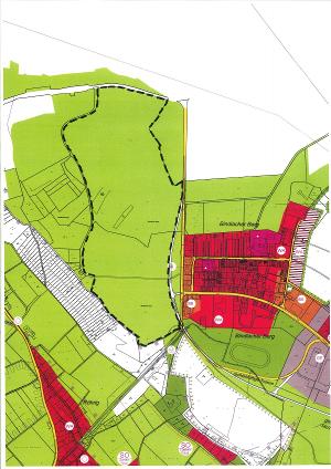
Grunddaten

Größe der unbebauten Fläche400.200 m²
Größe der Fläche mit Baurecht300.000 m²
Teilbar ab100.000 m²
Bebauungsplan Statusohne Angabe
Flurnummern1140, 1149
Erschließungnicht erschlossen
Ausweisung Nach Bau NVONach Flächennutzungsplan nicht festgelegt Erläuterungen
Baurechtliche Verfügbarkeitmittelfristig verfügbar
Erwerbsofort verfügbar
Eigentümerprivat
Derzeitige NutzungLand- oder Fortwirtschaftlich
Beschreibung / besondere MerkmaleHinweis:

Die Herausnahme der Fläche aus dem FFH-Gebiet nur in bestimmten Ausnahmefällen möglich – überragendes öffentliches Interesse sowie eine Alternativenprüfung des Standorts.

Für weitere Informationen kontaktieren Sie gerne Herrn Dieter Küfner (Erhard-Zethner-Weg 12, 95336 Mainleus; Mobil: +49 160 611 0001 D; Email: mail@bauplanungkuefner.de)

Verkehr

Verkehrsanbindung
Autobahn BAB 9: Richtung München-Berlin     2 km
Bundesstrasse B 2: Richtung Nürnberg-Gera     0 km
Autobahn BAB 9: Richtung München-Berlin     4 km
Verkehrsinfrastruktur
Flughafen Nürnberg 88 km