Gewerbefläche 1 - Gewerbegebiet Bayerbach-West

Bayerbach bei Ergoldsbach , Lkr. Landshut

Grunddaten

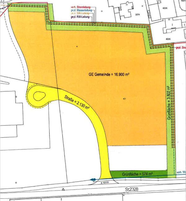
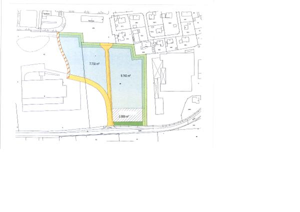
Größe der unbebauten Fläche2.000 m²
Größe der Fläche mit Baurecht2.000 m²
Teilbar ab2.000 m²
Bebauungsplan Statusrechtskräftig
Grundflächen­zahl (GRZ)0,6
Geschoßflächen­zahl (GFZ)1,2
Preisspanne in € / m²60
Erschließungteilweise erschlossen
Ausweisung Nach Bau NVOGewerbegebiet (GE) Erläuterungen
Baurechtliche Verfügbarkeitsofort verfügbar
Erwerbsofort verfügbar
Eigentümeröffentlich
Derzeitige NutzungLand- oder Fortwirtschaftlich

Verkehr

Verkehrsanbindung
Bundesstrasse 15 Ergoldsbach     7 km
Autobahn 92 Wörth a. d. Isar     8 km
Verkehrsinfrastruktur
Flughafen München 60 km
DB-Bahnhof Neufahrn i. NB 10 km

Infrastruktur

Wasserversorgung ja  
Stromversorgung ja  
Abwasserbeseitigung ja  
Breitbandversorgung ja  
Verkehrserschließung ja